Rif: IMMO-121735380
CODOGNO
LODI
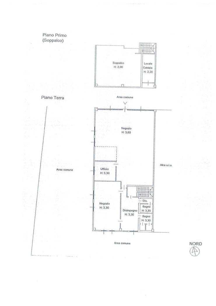
A Codogno in posizione ottimale con molto passaggio e vicino ad un supermercato molto frequentato proponiamo in affitto un locale commerciale di complessivi 270 metri da suddividere a piacere tra area dedicata alla vendita o all'attività, zona uffici e magazzino. Il comodo soppalco consente di collocarvi gli uffici senza togliere metri all'area commerciale. Già presenti due servizi igienici. L'area circostante consente una grande facilità di parcheggio per i clienti e una notevole comodità di carico-scarico. Da vedere!
Consistenze
| Descrizione | Superficie | Sup. comm. |
|---|---|---|
| Principali | ||
| Negozio - piano terra | 270 Mq | 270 Mqc |
| Magazzino - 1° piano | 50 Mq | 50 Mqc |
| Totale | 320 Mqc | |
